Ein Traum in Andernach - Charmantes Wohn- und Geschäftshaus in bester Innenstadtlage

539.000 €
Immobilientyp

Wohn- und Geschäftsgebäude

ImmobilienStatus

Zum Verkauf

201,25 m²

Gesamtfläche

136,87 m²

Wohnfläche Maisonettewohnung

44,49 m²

Gewerbefläche / Büroeinheit

4

Zimmer

3

Badezimmer

1

Dachterrasse

0

Stellplätze

D

Energieeffiezienzklasse

2014

Baujahr

Austattung

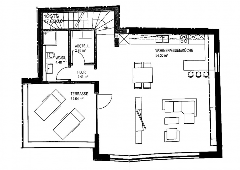
Grundriss Erdgeschoss

Hinweis: Die ursprünglichen Pläne der Gewerbeeinheit weichen von der derzeitigen Aufteilung ab. Die tatsächliche Nutzung und Aufteilung entnehmen Sie bitte den Gegebenheiten vor Ort.

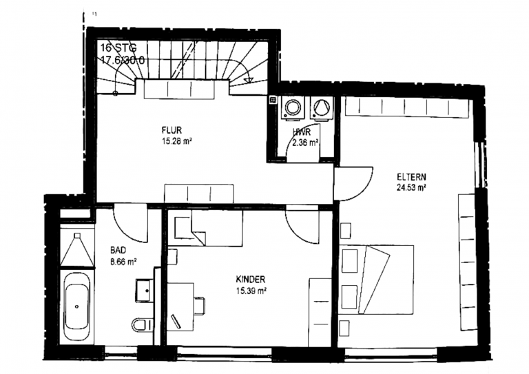
Grundriss 1. Obergeschoss

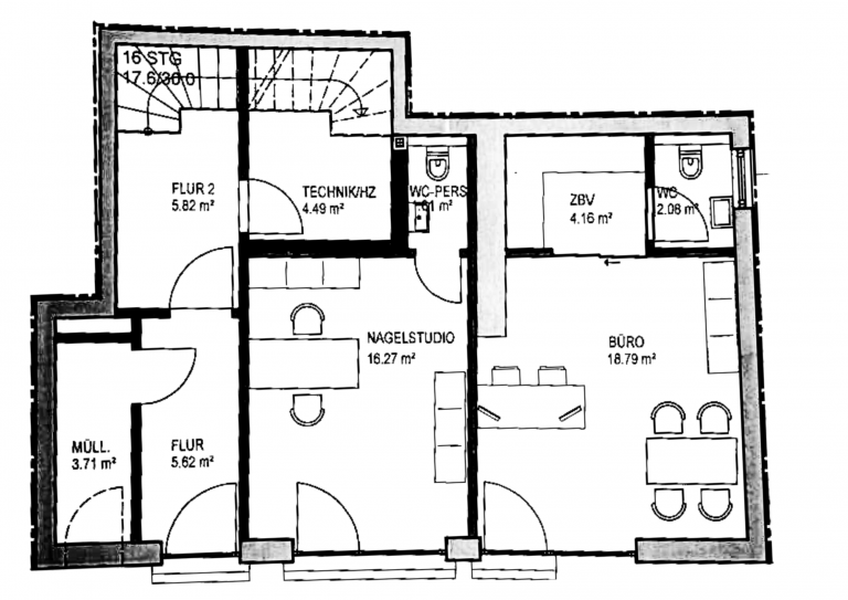
Grundriss 2. Obergeschoss

Beschreibung

Dieses moderne Wohn- und Geschäftshaus befindet sich im Herzen Andernachs und erfüllt alle Ansprüche an ein modernes Wohnen. Besonders interessant ist die Aufteilung des Objektes.

Über einen schmalen Eingang im Erdgeschoss gelangen Sie in das Treppenhaus der Maisonettewohnung. Diese verteilt sich auf das erste und zweite Obergeschoss und überzeugt durch große und lichtdurchflutete Räume. Ein besonderes Highlight bildet der großzügige Wohnbereich im zweiten Obergeschoss mit einer wunderschönen offenen Küche und dem Zugang zur Dachterrasse. Die einzelnen Etagen der Wohnung sind wie folgt aufgeteilt:

Erdgeschoss
- Flur
- Hauswirtschaftsraum

1. Obergeschoss
- Diele
- Zwei Schlafräume
- Badezimmer mit zwei Waschbecken, Badewanne und WC
- Abstellraum

2. Obergeschoss
- Großzügiger Wohn- und Essbereich mit offener Küche
- Badezimmer mit bodengleicher Dusche, Waschbecken und WC
- Abstellraum
- Dachterrasse

Die Gewerbeeinheit im Erdgeschoss ist über einen separaten Eingang erreichbar. Sie besteht aus einem Büroraum, einer Küche und einem WC mit Waschbecken. Aktuell ist die Gewerbeeinheit vermietet (monatliche Netto-Kaltmiete 500 €).

Hinweis zur Aufteilung der Flächen:
Gesamtfläche: 201,25 m²
Wohnfläche Maisonettewohnung: 136,87 m²
Gewerbefläche / vermietetes Büro: 44,49 m²

Lage

Die Immobilie befindet sich in zentraler Lage von Andernach, einer charmanten Stadt am Rhein mit guter Anbindung an Koblenz, Bonn und Köln. Besonders hervorzuheben ist dabei die Nähe des Objektes zur historischen Altstadt. Einkaufsmöglichkeiten, Schulen, Kindergärten und medizinische Versorgung befinden sich in unmittelbarer Nähe.

Die Stadt überzeugt durch ihre Mischung aus historischem Flair, moderner Infrastruktur und hoher Lebensqualität – perfekt für Familien und Berufspendler gleichermaßen. Die gepflegte Rheinpromenade, zahlreiche Freizeitangebote sowie ein hoher Naherholungswert machen Andernach zu einem besonders lebenswerten Standort.

Energieausweis

Ausweistyp: Bedarfsausweis

Endenergiebedarf: 128,3 kWh/(m²*a)

Energieeffizienzklasse: D

Wesentlicher Energieträger: Gas

Gebäudeart: Wohn- und Geschäftsgebäude

Baujahr: 2014

Ausstellungsdatum: 12.06.2025

Energieausweis gültig bis: 11.06.2035

Ruff Immobilien

Anmerkung

Das Exposé ist eine Vorabinformation. Alle Angaben nach bestem Wissen. Irrtum und Zwischenverkauf vorbehalten. Als Rechtsgrundlage dient allein der notariell geschlossene Kaufvertrag.

Provision

3,57% inkl. MwSt.; Käufercourtage in Höhe von 3,57% auf den Kaufpreis einschließlich gesetzlicher Mehrwertsteuer ist bei notariellem Vertragsabschluss verdient und fällig.