Charmante Maisonettewohnung in Koblenz - Horchheim

259.000 €
Immobilientyp

Eigentumswohnung

ImmobilienStatus

Zum Verkauf

100,92 m²

Wohnfläche

5

Zimmer

2

Badezimmer

0

Stellplatz

H

Energieeffiezienzklasse

1962

Baujahr

Austattung

Renovierungen 2025 / 2026

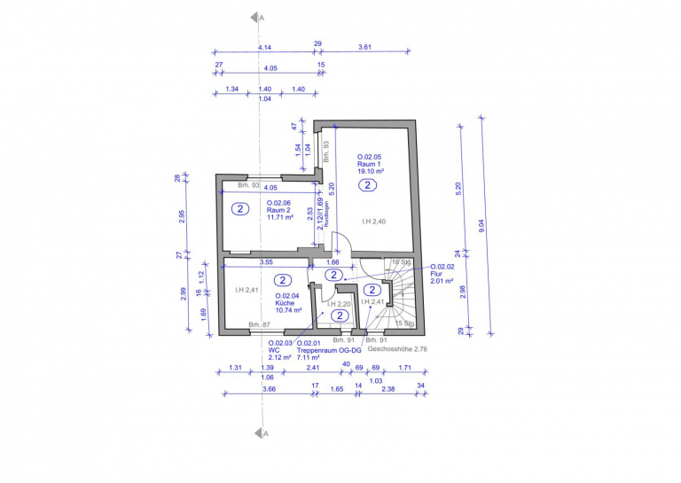
Grundriss 1. Obergeschoss

Grundriss 2. Obergeschoss

Beschreibung

Diese charmante Maisonettewohnung befindet sich im Ober- und Dachgeschoss eines Zweifamilienhauses und wurde 2026 liebevoll renoviert. Das innenliegende Treppenhaus führt Sie in den Eingangsbereich der ca. 100 m² großen Wohnung. Sie gelangen zuerst in den Flur, der Ihnen Zugang zum Gäste WC, der Küche und dem Wohn- und Essbereich gewährt. Über Ihr eigenes Treppenhaus kommen Sie in das gemütliche Dachgeschoss. Drei Zimmer, der Zugang zum Balkon und das Badezimmer mit Dusche und Badewanne laden Sie ein, Ihr neues Zuhause in vollen Zügen zu genießen.

Lage

Horchheim zählt zu den beliebten Wohnlagen von Koblenz und verbindet ruhiges, grünes Wohnen mit einer hervorragenden Nähe zur Innenstadt. Einkaufsmöglichkeiten, Restaurants, Ärzte sowie Schulen und Kindergärten sind bequem und größtenteils fußläufig erreichbar. Die Rheinpromenade liegt nur wenige Gehminuten entfernt und bietet vielfältige Freizeit- und Erholungsmöglichkeiten. Eine gute Anbindung an den öffentlichen Nahverkehr (unmittelbare Bushaltestelle in der Nähe mit 8 Min. Busverbindung zum Hauptbahnhof oder 13 Min. Busverbindung zum Einkaufszentrum FORUM) sowie an die Bundesstraßen und Autobahnen (direkte Auffahrt auf die B327 / Südbrücke) rundet die attraktive Lage ab.

Energieausweis

Ausweistyp: Bedarfsausweis

Endenergiebedarf: 266,1 kWh/(m²*a)

Energieeffizienzklasse: H

Wesentlicher Energieträger: Gas

Gebäudeart: freistehendes Zweifamilienhaus

Baujahr: 1962

Ausstellungsdatum: 29.01.2026

Energieausweis gültig bis: 28.01.2036

Ruff Immobilien

Anmerkung

Das Exposé ist eine Vorabinformation. Alle Angaben nach bestem Wissen. Irrtum und Zwischenverkauf vorbehalten. Als Rechtsgrundlage dient allein der notariell geschlossene Kaufvertrag.

Provision

3,57 % Käuferprovision inkl. MwSt., verdient und fällig mit Beurkundung des notariellen Kaufvertrages. Der Immobilienmakler hat einen provisionspflichtigen Maklervertrag mit dem Verkäufer in gleicher Höhe abgeschlossen.