Die perfekte Wohnung für Singles und Paare - Erdgeschosswohnung in Koblenz - Horchheim

165.000 €
Immobilientyp

Eigentumswohnung

ImmobilienStatus

Zum Verkauf

49,92 m²

Wohnfläche

2

Zimmer

1

Badezimmer

0

Stellplatz

H

Energieeffiezienzklasse

1962

Baujahr

Austattung

Renovierungen 2025 / 2026

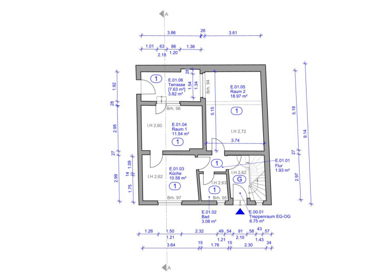
Grundriss Erdgeschoss

Beschreibung

Diese gemütliche Wohnung befindet sich im Erdgeschoss eines Zweifamilienhauses und wurde 2026 liebevoll renoviert. Das innenliegende Treppenhaus führt Sie in den Eingangsbereich der ca. 50 m² großen Wohnung. Sie gelangen zuerst in den Flur, der Ihnen Zugang zum modernen Badezimmer, der Küche und dem Schlafzimmer gewährt. Das Wohnzimmer mit Zugang zur Terrasse ist über die Küche erreichbar.

Lage

Horchheim zählt zu den beliebten Wohnlagen von Koblenz und verbindet ruhiges, grünes Wohnen mit einer hervorragenden Nähe zur Innenstadt. Einkaufsmöglichkeiten, Restaurants, Ärzte sowie Schulen und Kindergärten sind bequem und größtenteils fußläufig erreichbar. Die Rheinpromenade liegt nur wenige Gehminuten entfernt und bietet vielfältige Freizeit- und Erholungsmöglichkeiten. Eine gute Anbindung an den öffentlichen Nahverkehr (unmittelbare Bushaltestelle in der Nähe mit 8 Min. Busverbindung zum Hauptbahnhof oder 13 Min. Busverbindung zum Einkaufszentrum FORUM) sowie an die Bundesstraßen und Autobahnen (direkte Auffahrt auf die B327 / Südbrücke) rundet die attraktive Lage ab.

Energieausweis

Ausweistyp: Bedarfsausweis

Endenergiebedarf: 266,1 kWh/(m²*a)

Energieeffizienzklasse: H

Wesentlicher Energieträger: Gas

Gebäudeart: freistehendes Zweifamilienhaus

Baujahr: 1962

Ausstellungsdatum: 29.01.2026

Energieausweis gültig bis: 28.01.2036

Ruff Immobilien

Anmerkung

Das Exposé ist eine Vorabinformation. Alle Angaben nach bestem Wissen. Irrtum und Zwischenverkauf vorbehalten. Als Rechtsgrundlage dient allein der notariell geschlossene Kaufvertrag.

Provision

3,57 % Käuferprovision inkl. MwSt., verdient und fällig mit Beurkundung des notariellen Kaufvertrages. Der Immobilienmakler hat einen provisionspflichtigen Maklervertrag mit dem Verkäufer in gleicher Höhe abgeschlossen.